Edificio en el centro de Oviedo, viviendas exteriores muy soleadas con garajes y trasteros, todas dotadas con suelo radiante. aerotermia y recuperadores de calor, cocinas de gama alta y excelentes materiales.
• Inicio previsto de obras 2024 •
• Inicio previsto de obras 2024 •
• Inicio previsto de obras 2024 •
• Inicio previsto de obras 2024 •
• Inicio previsto de obras 2024 •
• Inicio previsto de obras 2024 •
Calle Padre Suárez, 9.
33009 Oviedo, Asturias
A 600 metros de la calle Uría (8 minutos caminando)
FACHADAS: Fachada principal y posterior a zona verde ventiladas . Enlucido y pintado al interior.
CUBIERTAS: Cubierta plana transitable en áticos con acabado en cerámica antideslizante y aislamiento térmico. Cubierta plana transitable en la cubierta general del edificio con aislamiento térmico.
CARPINTERIA EXTERIOR: Ventanas y puertas de Aluminio termolacado con rotura de puente térmico. Acristalamiento doble tipo climalit y cámara con inyección de gas argón. Apertura oscilobatiente en una de las hojas, excepto en puerta corredera. Persianas con lamas de aluminio inyectadas con poliuretano y cajones con aislamiento térmico.
CARPINTERIA INTERIOR: Puertas de paso lacadas en color blanco. Puerta de entrada acorazada con cerradura de seguridad. Frente de armario con puertas correderas, forrado interior y cajonera.
PAVIMENTOS: Gres porcelánico imitación madera en toda la vivienda con rodapié de madera lacada o aluminio en color blanco. Suelo de terrazas en vivienda con gres porcelánico imitación madera de exteriores antideslizante.
REVESTIMIENTOS: Alicatado en cocina y baños con cerámica de primera calidad.
PINTURA: Antimoho en colores claros en techos y paredes.
SANITARIOS: Lavabo, inodoro Roca o similar y plato de ducha acrílico integrado en suelo.
CALEFACCIÓN Y AGUA CALIENTE SANITARIA: Aerotermia y suelo radiante en viviendas.
SISTEMA DE VENTILACION EN VIVIENDAS: Sistema de recuperación de calor obteniendo el máximo confort en el interior de las viviendas y obteniendo una mayor eficiencia energética de los sistemas de calefacción por suelo radiante.
AMUEBLAMIENTO EN COCINAS: Amueblamiento bajo y alto hasta el techo de primera calidad y meseta lisa de Silestone o similar.
INSTALACION ELECTRICA - TELECOMUNICACIONES: Instalación de antena para la recepción de televisión digital terrestre. con tomas en salón y dormitorios. Tomas para teléfono en salón y dormitorios.
PORTAL, ASCENSOR, GARAJES: Zonas comunes accesibles. Decoración de portal con materiales de primera calidad, cerámicas o similares. Trasteros individuales. Monta coches para acceso rodado a garajes.
- Ático con gran terraza, ultima planta completa, impresionantes vistas 360º.
- Todas la viviendas, soleadas y exteriores.
- Plazas de garaje.
- Amplios trasteros.
- Viviendas accesibles.
- Calificación energética A.
- Cocinas de gama alta.
- Suelo radiante con aerotermia y recuperación de calor.
- Totalmente exterior y con terraza en dormitorios, cocina y salón
- Aerotermia y suelo radiante con recuperación de calor.
Promoción:
Padre Suárez 9
Viviendas:
Hasta 4 dormitorios
Fecha:
2024
Estas imágenes no tienen valor contractual, siendo meramente orientativo, pudiendo por lo tanto la dirección técnica variar características y calidades, las imágenes son igualmente orientativas
6 Tipos de viviendas, con posibilidad de elegir modificados, consulta las diferentes opciones disponibles.
Descubre la amplia variedad de propiedades diseñadas para satisfacer tus necesidades. Ya sea un ático con vistas, un estudio acogedor o un piso familiar, tenemos la opción perfecta para ti.
¡Encuentra tu hogar ideal con nosotros!
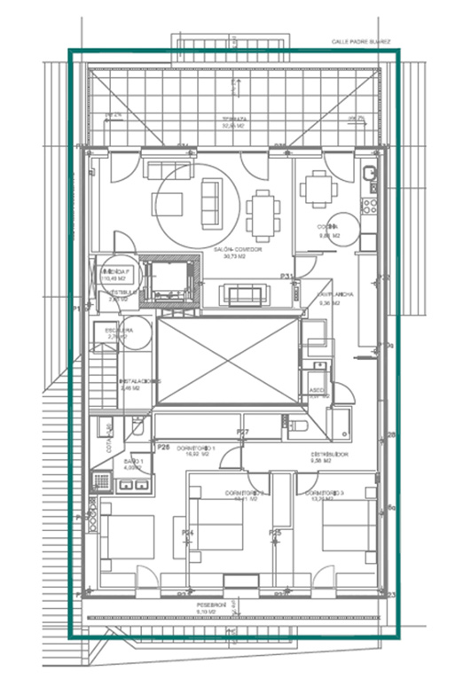
Áticos tipo F
• Ultima planta del edificio completa, vistas 360°
• 600 metros de la calle Uría (8 minutos caminando)
• Vivienda muy soleada, orientada al este, sur y oeste
• Totalmente exterior y con terraza en dormitorios, cocina y salón
•Aerotermia y suelo radiante con recuperación de calor
Pisos tipo A
• Aerotermia y suelo radiante con recuperación de calor
• 600 metros de la calle Uría (8 minutos caminando)
• Vivienda soleada, orientada al este y sur
• Exterior y con terraza
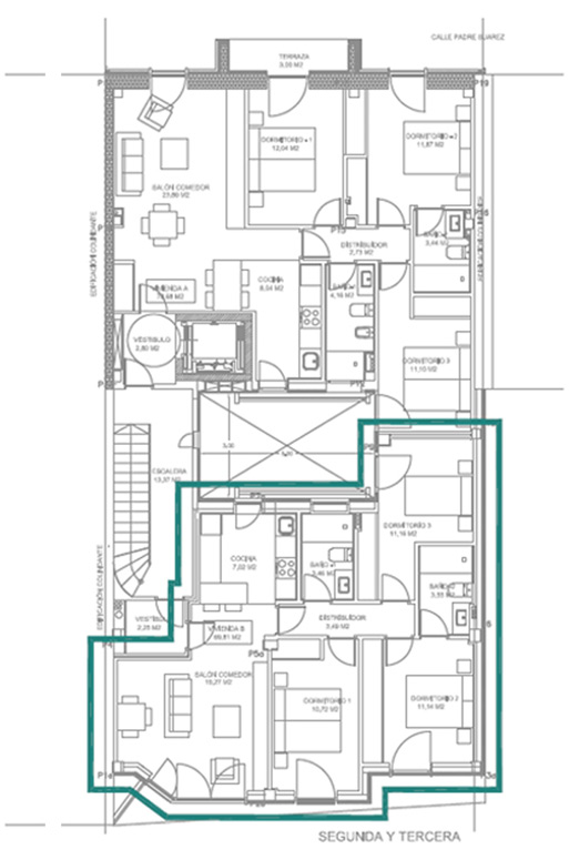
Pisos tipo B
• Aerotermia y suelo radiante con recuperación de calor
• 600 metros de la calle Uría (8 minutos caminando)
• Vivienda soleada, orientada al este y sur
• Exterior y con vistas a las montañas
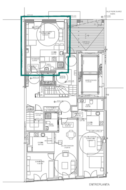
Entresuelo tipo C
• Aerotermia y suelo radiante con recuperación de calor
• 600 metros de la cale Uria (8 minutos caminando)
• Vivienda exterior, soleada, orientada al oeste.
Entresuelo tipo D
• Aerotermia y suelo radiante con recuperación de calor.
• 600 metros de la calle Uría (8 minutos caminando).
• Vivienda soleada, orientada al este.
• Exterior y con vistas a las montañas.
Piso tipo A+B
• Aerotermia y suelo radiante con recuperación de calor
• 600 metros de la cale Uria (8 minutos caminando)
• Vivienda soleada, orientada al oeste y sur.
• Exterior con terraza y vistas a las montañas.
Estos documentos no tiene valor contractual, siendo meramente orientativos pudiendo por lo tanto la dirección técnica variar características y cualidades. Las superficies son igualmente orientativas.



























































